SECTION I
Installation

Page 1 - 3




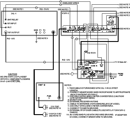
Figure 1-2 Interconnections with KWM-2/2A Home Station


Page 1 - 3